Dự Án Khu Đô Thị Đông Bình Dương: Giá, Pháp Lý, Quy Hoạch 2026
Dự án khu đô thị Đông Bình Dương đang là từ khóa được rất nhiều người mua ở thực lẫn nhà đầu tư tại Bình Dương quan tâm. Lý do rất dễ hiểu: dự án có quy mô lớn, nằm tại vị trí kết nối tốt ở Dĩ An, quy hoạch bài bản và đã có những tín hiệu rõ ràng về tiến độ xây dựng. Nếu anh chị đang tìm hiểu để mua đất nền, đánh giá tiềm năng tăng giá, hoặc chuẩn bị xây nhà tại đây, bài viết này sẽ giúp nhìn bức tranh tổng thể rõ ràng, dễ hiểu và thực tế hơn.

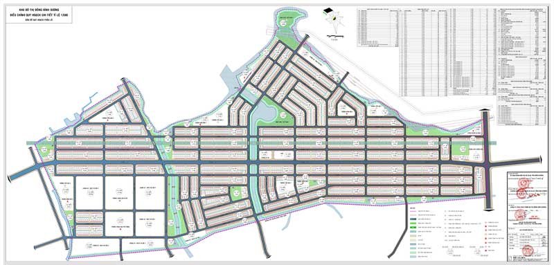
Tổng quan dự án khu đô thị Đông Bình Dương
Dự án khu đô thị Đông Bình Dương là khu đô thị quy mô lớn tại khu vực Dĩ An, được nhiều người chú ý nhờ quỹ đất rộng, quy hoạch đồng bộ và mức giá còn khá cạnh tranh so với mặt bằng khu vực lân cận. Với người mua bất động sản Bình Dương, đây là dự án đáng theo dõi cả về nhu cầu an cư lẫn đầu tư trung hạn.
Dự án khu đô thị Đông Bình Dương ở đâu?
Dự án nằm trên đường Nguyễn Thị Minh Khai, thuộc khu vực Tân Bình cũ của TP Dĩ An, nay thuộc phường Tân Đông Hiệp, TP Hồ Chí Minh theo thông tin anh chị cung cấp. Đây là trục đường có vai trò kết nối giữa trung tâm Dĩ An với Biên Hòa, Đồng Nai.
Vị trí này tạo lợi thế di chuyển khá thuận tiện đến các khu công nghiệp, trung tâm thương mại, trường học và các đầu mối giao thông lớn. Với người mua nhà đất Dĩ An, yếu tố kết nối vùng luôn là điểm được cân nhắc rất kỹ, và dự án này đang có ưu thế rõ rệt ở khía cạnh đó.
Quy mô toàn khu và số lượng sản phẩm
Dự án khu đô thị Đông Bình Dương có quy mô tổng thể khoảng 1.267.002 m², tương đương 126,7 ha. Toàn dự án bố trí khoảng 6.433 nền, thuộc nhóm khu đô thị có quy mô lớn tại Bình Dương.
Các diện tích nền khá đa dạng, phù hợp nhiều nhu cầu tài chính khác nhau:
- 60m² – kích thước 6×10
- 65m² – kích thước 5×13
- 75m² – kích thước 5×15
- 80m² – kích thước 5×16
- 85m² – kích thước 5×17
- 100m² – kích thước 5×20
- 120m² – kích thước 7.5×16
- 135m² – kích thước 7.5×18
Đây là quỹ sản phẩm phù hợp từ người mua ở thực, gia đình trẻ cho đến nhà đầu tư muốn giữ đất nền Bình Dương ở khu vực có quy hoạch đô thị lớn.
Quy hoạch dân số và định hướng phát triển
Quy mô dân số dự kiến của dự án vào khoảng 23.036 đến 31.675 người. Với mật độ này, dự án không chỉ là khu đất nền đơn thuần mà được định hướng thành một khu đô thị có khả năng hình thành cộng đồng cư dân thực.
Điểm đáng chú ý là dự án được quy hoạch theo hướng đô thị loại 2 của tỉnh. Điều này giúp người mua hình dung rõ hơn về tầm nhìn phát triển dài hạn, không phải kiểu phân lô nhỏ lẻ thiếu tiện ích.
Quy hoạch sử dụng đất tại dự án khu đô thị Đông Bình Dương
Một dự án muốn ở được lâu dài hay đầu tư bền vững thì yếu tố quy hoạch rất quan trọng. Dự án khu đô thị Đông Bình Dương có cơ cấu sử dụng đất khá đầy đủ, cho thấy định hướng phát triển thành khu dân cư có tính hoàn chỉnh.
Đất ở, nhà ở xã hội và tái định cư
Tổng diện tích đất ở khoảng 464.083 m², chiếm khoảng 33,25% diện tích toàn khu. Trong đó có nhà phố liền kề, chung cư và các phân khu phục vụ dân cư ở thực.
Ngoài ra, dự án còn có:
- Đất ở tái định cư: 44.814 m²
- Đất nhà ở xã hội: 92.858 m²
- Chung cư: 63 căn hộ theo quy hoạch được nêu
Việc có quỹ đất cho nhiều loại hình nhà ở là tín hiệu tốt, vì nó giúp hình thành cộng đồng cư dân đa dạng, tăng khả năng lấp đầy và nhu cầu sinh hoạt thật.
Đất thương mại, giáo dục, y tế và cây xanh
Dự án dành quỹ đất cho nhiều hạng mục thiết yếu:
- Đất thương mại dịch vụ: 8.866 m²
- Đất giáo dục: 80.787 m²
- Đất y tế: 5.541 m²
- Đất cây xanh, thể dục thể thao: 51.008 m²
- Đất hạ tầng kỹ thuật: 28.415 m²
- Đất giao thông: 377.911 m²
Nhìn vào cơ cấu này, có thể thấy dự án khu đô thị Đông Bình Dương không chỉ bán nền mà còn được đầu tư theo hướng sống được, vận hành được và có nhịp sống đô thị rõ ràng.
Điểm cộng về hạ tầng nội khu
Thông tin quy hoạch cho thấy dự án có hệ thống điện nước âm, hạ tầng phòng cháy chữa cháy, lối đi bộ toàn khu, cây xanh xen giữa các dãy nhà và khoảng thoát hiểm phía sau nhà. Đây là những yếu tố nhỏ nhưng rất thực tế với người mua để ở.
Khi xem một khu đô thị, nhiều anh chị thường chỉ chú ý giá. Nhưng trải nghiệm sống sau này lại phụ thuộc rất nhiều vào quy hoạch giao thông, mảng xanh và hạ tầng kỹ thuật.
Pháp lý dự án khu đô thị Đông Bình Dương có gì đáng chú ý?
Đây là phần người mua quan tâm nhất, và cũng là phần cần nhìn thật tỉnh táo. Với dự án khu đô thị Đông Bình Dương, thông tin pháp lý đang cho thấy nhiều bước tiến quan trọng, nhưng người mua vẫn nên kiểm tra hồ sơ cụ thể của từng nền trước khi giao dịch.
Quy hoạch 1/500 và các quyết định pháp lý
Dự án được UBND tỉnh Bình Dương chấp thuận chủ trương và đã được phê duyệt quy hoạch chi tiết tỷ lệ 1/500. Một số mốc đáng chú ý gồm:
- Quyết định 8442/QĐ ngày 28/11/2011
- Điều chỉnh quy hoạch ngày 25/09/2018
- Quyết định 4046/QĐ-UBND phê duyệt điều chỉnh quy hoạch chi tiết 1/500
Đây là nền tảng pháp lý quan trọng để dự án tiếp tục triển khai hạ tầng và các bước xây dựng sau này.
Tình hình giao đất và tiến độ pháp lý đất đai
Theo thông tin cung cấp, dự án đã được giao đất qua 10 đợt, với tổng diện tích khoảng 125,2ha trên 126,7ha, tương đương khoảng 99% diện tích.
Phần diện tích còn lại khoảng 1,5ha đang tiếp tục hoàn thiện thủ tục. Đây là tín hiệu tích cực, vì tỷ lệ giao đất đã rất cao so với tổng quy mô toàn khu.
Người mua cần lưu ý gì?
Dù pháp lý tổng thể của dự án đã có nhiều tiến triển, người mua vẫn nên kiểm tra kỹ:
- Tình trạng giao đất thực tế của lô mình quan tâm
- Hồ sơ liên quan đến xây dựng và bàn giao
- Điều kiện cấp giấy chứng nhận trong từng giai đoạn
- Nghĩa vụ tài chính đã thực hiện đến đâu
Trung thực mà nói, đây là bước không nên bỏ qua. Mua bất động sản Bình Dương, nhất là đất nền dự án, thì cẩn thận từ đầu luôn tốt hơn sửa sai về sau.
Giấy phép xây dựng và tiến độ triển khai
Ngày 05/02/2024, Sở Xây dựng tỉnh Bình Dương đã cấp Giấy phép xây dựng số 458/GPXD để thực hiện thi công hạ tầng dự án. Đây là mốc khá quan trọng vì cho thấy dự án đã tiến thêm một bước rõ ràng trên thực địa.
Theo thông tin được nêu, cư dân được phép xây dựng nhà từ 17/02/2025. Với người đã mua nền hoặc đang cân nhắc mua để xây ở, đây là thông tin tạo nhiều kỳ vọng.
Giá đất dự án khu đô thị Đông Bình Dương hiện nay
Giá là yếu tố quyết định rất lớn khi khách hàng tìm mua đất nền Đông Bình Dương. Trong dữ liệu anh chị cung cấp có 2 mốc giá khác nhau, phản ánh khả năng giá đã thay đổi theo thời điểm và vị trí.
Mức giá tham khảo theo thị trường
Có giai đoạn giá được nhắc đến ở mức 10,5 triệu đến 16 triệu/m². Ở phần cập nhật khác, giá lại được ghi nhận trong khoảng 15 triệu đến 30 triệu/m².
Điều này cho thấy người mua cần hiểu đúng rằng giá bán không cố định cho toàn dự án. Nó phụ thuộc vào vị trí lô, trục đường, pháp lý từng thời điểm, mức độ hoàn thiện hạ tầng và nhu cầu thị trường.
Ví dụ giá nền phổ biến
Một số mức giá tham khảo cho nền 80m²:
- 80m² giá khoảng 1,36 tỷ
- 80m² giá khoảng 1,52 tỷ
- 80m² giá khoảng 1,76 tỷ
So với nhiều khu vực khác tại Dĩ An, đây vẫn là biên giá khiến nhiều người quan tâm. Đặc biệt với người mua để ở lâu dài, mức vốn này còn dễ tiếp cận hơn so với nhà xây sẵn trong nội đô.
Có nên xem đây là mức giá rẻ?
Nếu so với mặt bằng giá đất một số khu vực Tân Đông Hiệp đang ở mức cao hơn, dự án khu đô thị Đông Bình Dương vẫn có lợi thế nhất định. Tuy nhiên, chữ “rẻ” chỉ thật sự đúng khi đi cùng các yếu tố như vị trí đẹp, pháp lý rõ và khả năng thanh khoản.
Nói cách khác, anh chị nên so giá trên cùng tiêu chí, không nên chỉ nhìn con số mỗi mét vuông.
Tiện ích và khả năng sống thực tại dự án khu đô thị Đông Bình Dương
Một khu đô thị đáng tiền không chỉ nằm ở giá bán mà còn ở chuyện sống mỗi ngày có tiện không. Với dự án khu đô thị Đông Bình Dương, hệ thống tiện ích nội khu và ngoại khu là điểm cộng khá rõ.
Tiện ích nội khu
Theo quy hoạch, dự án có:
- 1 trung tâm thương mại
- 1 chợ truyền thống
- 5 công viên
- 16 mảng xanh
- 5 trường mầm non
- 4 trường tiểu học
- 1 trường THCS
- 1 trường THPT
- 2 phòng khám đa khoa
- 7 tòa chung cư
Với người mua nhà đất Bình Dương để ở, đây là hệ tiện ích đáng chú ý vì đáp ứng khá đầy đủ nhu cầu học tập, mua sắm, chăm sóc sức khỏe và sinh hoạt gia đình.
Tiện ích ngoại khu và kết nối vùng
Từ dự án có thể kết nối khá nhanh đến nhiều điểm quan trọng:
- UBND phường Tân Bình khoảng 800m
- Chợ Tân Bình khoảng 600m
- Trường tiểu học Tân Bình khoảng 500m
- Trường THCS Tân Bình khoảng 600m
- GO Dĩ An khoảng 7km
- Bến xe Miền Đông Mới khoảng 10km
- Sân bay Tân Sơn Nhất khoảng 25km
Khả năng kết nối với Biên Hòa, Thủ Đức, TP HCM và các khu công nghiệp lớn cũng là một lợi thế rất thực tế. Điều này phù hợp với cả người đi làm lẫn người muốn khai thác cho thuê.
Có nên mua dự án khu đô thị Đông Bình Dương thời điểm này?
Đây là câu hỏi thật, và cũng là điều nhiều người đang đắn đo. Câu trả lời nên dựa vào mục tiêu của anh chị, thay vì chạy theo tâm lý đám đông.
Phù hợp với người mua ở thực
Nếu anh chị đang tìm một khu đô thị có quy hoạch lớn, quỹ nền đa dạng, giá còn trong tầm cân đối và có thể xây nhà trong giai đoạn tới, thì dự án khu đô thị Đông Bình Dương là lựa chọn đáng xem xét.
Đặc biệt, người làm việc tại Dĩ An, Thuận An, Thủ Đức, Biên Hòa sẽ cảm nhận rõ lợi thế vị trí. Việc mua nền rồi xây theo nhu cầu riêng cũng giúp tối ưu ngân sách hơn mua nhà hoàn thiện sẵn.
Phù hợp với nhà đầu tư trung hạn
Với nhà đầu tư, dự án này có một số điểm sáng:
- Quy mô lớn, dễ hình thành cộng đồng dân cư
- Hạ tầng và pháp lý có tiến triển
- Vị trí kết nối liên vùng tốt
- Biên giá vẫn còn dư địa so với nhiều khu vực lân cận
Tuy nhiên, đầu tư hiệu quả vẫn cần chọn đúng sản phẩm. Nền nằm ở trục đẹp, gần tiện ích, đường lớn và có tính thanh khoản sẽ khác rất nhiều so với nền vị trí bình thường.
Lời khuyên chân thành trước khi xuống tiền
Anh chị nên đi thực tế dự án, xem hạ tầng, kiểm tra hồ sơ, hỏi rõ tiến độ xây dựng và điều kiện cấp giấy tờ cho từng nền. Đừng mua chỉ vì nghe nói “sắp tăng giá”.
Một quyết định bất động sản đúng là quyết định mình hiểu rõ, không phải quyết định mình nghe hấp dẫn.
Kết luận về dự án khu đô thị Đông Bình Dương
Dự án khu đô thị Đông Bình Dương đang hội tụ nhiều yếu tố khiến thị trường chú ý: quy mô lớn, vị trí kết nối tốt, quy hoạch đồng bộ, tiện ích đa dạng và tiến độ pháp lý có chuyển biến. Với người mua bất động sản Bình Dương, đây là dự án đáng dành thời gian tìm hiểu kỹ.
Nếu anh chị ưu tiên một nơi có thể an cư lâu dài, có tiềm năng tăng giá theo hạ tầng và sự phát triển của Dĩ An, dự án này có nhiều điểm để cân nhắc. Nhưng như mọi sản phẩm bất động sản khác, hiệu quả cuối cùng vẫn nằm ở việc chọn đúng nền, đúng thời điểm và kiểm tra pháp lý thật kỹ.
Nếu quý anh chị đang sở hữu đất nền dự án khu đô thị Đông Bình Dương, đang có nhu cầu báo giá xây dựng nhà ở, liên hệ ngay với chúng tôi.
CÔNG TY CỔ PHẦN TƯ VẤN ĐẦU TƯ XÂY DỰNG ĐÔNG SÀI GÒN
- Địa chỉ: 934 Đ. Nguyễn Thị Minh Khai, Tân Đông Hiệp, TP Hồ Chí Minh
- Hotline: 0965.950.939
- Trang web: xaydungdongsaigon.com
- Zalo: https://zalo.me/0965950939
